cam look ii passive house, rickmansworth
Cam Look II is a contemporary multi-generational new home set in a suburban valley landscape in south-west Hertfordshire. The new two storey, 4500 sq.ft 5-bedroom dwelling replaces an existing bungalow and will be constructed using offsite manufactured, low-carbon, healthy materials and renewable technologies to deliver a truly high-performance, low operational energy home. With a passive house design approach, the home meets RIBA 2030 Climate Challenge standards.
The dwelling is approached from a gentle descent from the main road, with an entrance defined by tall, slender glazing flanked by a large bronze-clad canopy that leads into an incredible double height entrance hallway. This space leads the eye vertically to an impressive stairway to the first floor and circular rooflight that floods the space with natural light.
The main ground floor living, kitchen, swimming pool, gym and sauna facilities to the rear are designed around a courtyard garden space; reminiscent of West-African compound houses, and allowing for ample natural light to flood in through floor to ceiling glazing. A senior-living living guest suite and cinema room completes the ground floor to the front of the plan.
On the first floor, the three primary bedrooms face out over green roofs and the dense forest of trees into the depth of the landscaped garden. An additional guest bedroom, laundry and office space complete the first-floor plan.
Sustainability credentials
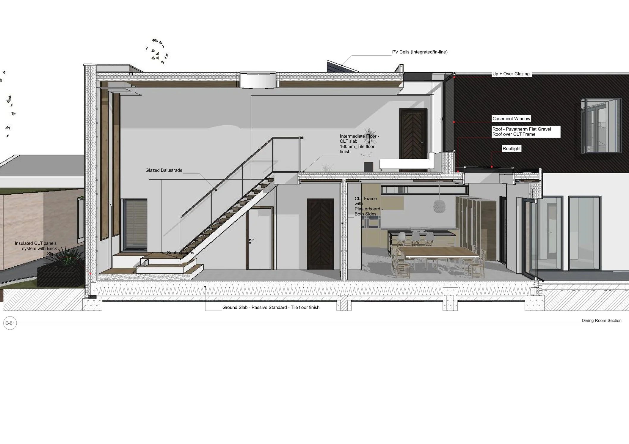
The home has been designed to be low energy with an airtight fabric comprised of offsite manufactured Cross Laminated and Glulam Timber structure, high performance insulation, sustainability sourced timber cladding. U-Values to the walls and roof achieve 0.10 and 0.11 respectively.
3No Air Source Heat Pumps (ASHP) provide space and hot water heating to the dwelling, with constant fresh air provided by Mechanical Ventilation heat recovery (MVHR) units.
Biodiversity improvements to the landscape are captured with the use of sedum roofs and the design combines indoor-outdoor living, a courtyard surrounded by ASHP powered swimming pool, sauna and gym space and landscaped garden offering opportunities for quiet seclusion.
